
身為年長弟弟12歲的兄長,很欣慰弟弟和弟妹擁有一個安穩的家!
弟弟畢業後即北漂工作+結婚,當了好久的租屋族,去年才在台中定下來,住進他們夫妻倆藍圖中的起家厝。
地點:台中南屯
屋齡:新成屋
類型:電梯大樓
設計坪數:18坪(不含2間衛浴)
格局:3房改2房2廳2衛
設計公司:綻緣空間設計
以下是弟弟的分享:
婚前婚後當了多年的租屋族,一直渴望有屬於自己的空間,不用搬來搬去。和老婆決定買房後,花了一年多時間看房、評估,終於找到這間各方面都符合我們需求的房子。
◆房子原始屋況◆


我們買的是預售屋,由於兩人工作都忙,直到快交屋時才找設計師。
事後其實有點後悔太晚找設計師...如果當初買屋後先找設計師討論裝潢風格並提前客變,我們就能節省滿多裝潢費用...而不用又動牆面又動水電...
回到設計公司,當時看到綻緣空間設計的作品,十分合我們眼緣,風格也正符合我們需求,但因為是第一次找裝修,想說多找幾間設計公司比較保險,結果諮詢好幾間,兜兜轉轉,還是轉回我們第一個找到的綻緣空間設計,和林設計師聊過之後,我們非常合拍,就決定交給他們開始了新家規劃!
◆平面圖◆
▼原始格局3房平面圖
建商原規劃成3房,導致廚房流理空間狹小。

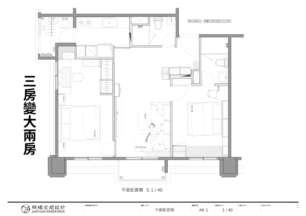
▼變更後格局大2房平面圖
我們反映廚房過窄的問題,綻緣設計師透過空間設計改造成更舒適、更好用的格局。
捨棄一間臥室用以擴大廚房空間,同時重建的隔間牆面,在廚房和臥室皆能規劃收納櫃體,增加收納空間。

◆3D渲染圖◆
整體設計我和老婆都很滿意,現代帶點輕奢感,讓我們很期待成果!








◆施工過程◆
監工隨手拍,施工現場維持滿乾淨的,看工班都是一邊做一邊收拾,工程品質很不錯,林設計師也是定期回報進度,即便我們上班不能到現場也能放心!
▼看不懂的施工圖…拍一下,莫名有參與感!

▼打通的兩間臥室。



▼木工、系統櫃和系統櫥櫃。
木工可以呈現更豐富的櫃體變化,系統櫃則是可以加速施工進度。

▼噴漆。

◆完工分享◆
玄關
▼玄關是家的門面、家的第一印象,我們希望每個踏入新家的客人,可以獲得耳目一新的衝擊感。
故在玄關設計上,設計師以布織紋櫃面提升系統櫃質感,並搭配幾何拼貼茶鏡,完美呈現我們想要的現代、時尚、輕奢裝潢風格。


▼窺探電視櫃一隅。

客廳
▼好喜歡這種寧靜的色調,讓整體氛圍且舒適。設計師用抱枕、飽滿的橘,點綴空間,有亮點!
另外我們比較在意空氣品質,因為新家周圍空氣狀況較差,所以特別安裝全熱交換機,希望在緊閉窗戶狀態下也能通風維持空氣清新。


▼電視牆也是我們最愛設計之一!
林設計師以隱形門設計,默默幫我們擴大了電視牆,讓整個牆面延伸更能放大空間感。



廚房
▼廚房做了拉門,避免下廚時油煙飄散出去。
本來門框是深咖啡色,看起來沉重又顯空間小,設計師幫我們換了一個玻璃拉門,整個感覺就變得好有設計感!
玻璃拉門是隱形軌道門,視覺感懸浮輕盈,搭配小冰柱玻璃,保有採光又能阻擋視線,同時半遮蔽的透明度微映人影,可以告訴大家:裡面有人哦!


▼系統櫥櫃是淺奶茶風,搭配大理石紋AICA板,取代烤漆玻璃或傳統防濺磁磚,時尚美觀又易於清潔。
我們很喜歡廚房整體的配色,清爽、輕快,讓人完全感受不到廚房空間封閉,每次下廚我們都覺得自己好幸福!



主臥室
▼每天早上陽光灑進來,淺色調光捲簾和臥榻,將臥室呈現充滿輕盈又溫暖的情調。
而我最愛的則是在臥榻翻著一本又一本的漫畫!慵懶、愜意、爽!!

▼因為風水考量,我們挺在意主臥室壓樑問題,所以林設計師特別規劃加厚版床頭櫃,巧妙避開壓樑,又可以增加收納空間。

▼簡約梳妝台。

▼床頭配置好插座和開關,不用起床就能關燈,到了冬天更是喜歡這個設計。


臥室二
▼將原本兩間小臥室打通後,有一個完整的大空間可以規劃,所以林設計師幫我們把辦公書桌以及步入式衣櫃配置在這裡。

▼使用我們兩人都喜歡的飽滿橘色,面對溫暖的採光,相信未來處理工作會特別有動力!


◆裝修&入住心得◆
住進來半年多,我們只要待在家裡,每一刻都更愛我們的新家!不僅裝潢好看,生活起來也很舒適。
很開心當初是交給綻緣空間設計,找對設計師很重要,林設計師樂於傾聽我們的需求,對細節的追求和貼心程度也讓我們很安心,最後呈現出我們想像中美好的家!
如果我們未來再有裝潢機會或大家需要裝潢,會建議可以在客變時就找設計師,提前與建商客變格局,會比交屋後再來更動格局節省更多費用,也省了大動干戈的功夫。
分享這次的裝潢經驗給大家,希望大家都能找到合拍的室內設計師!
地址:台中市南區忠明南路758號14樓
營業時間:9:00-18:00(六日休息)
LINE官方帳號:https://lin.ee/3Xzn7muD
LINE ID:@jhanyuan
粉專:https://www.facebook.com/jhanyuandesign/





